
Based on the masterplan defining perimeter blocks and high-rise elements, the design develops a mixed-use office building adjacent to Amerigo-Vespucci Square, activating the urban entrance to HafenCity. The building is conceived as a three-dimensional, open structure organized around a central foyer and a vertical “town hall” circulation space. Public functions at ground level like retail, gastronomy, fitness, and service, activate the streetscape and connect the building to its surroundings.
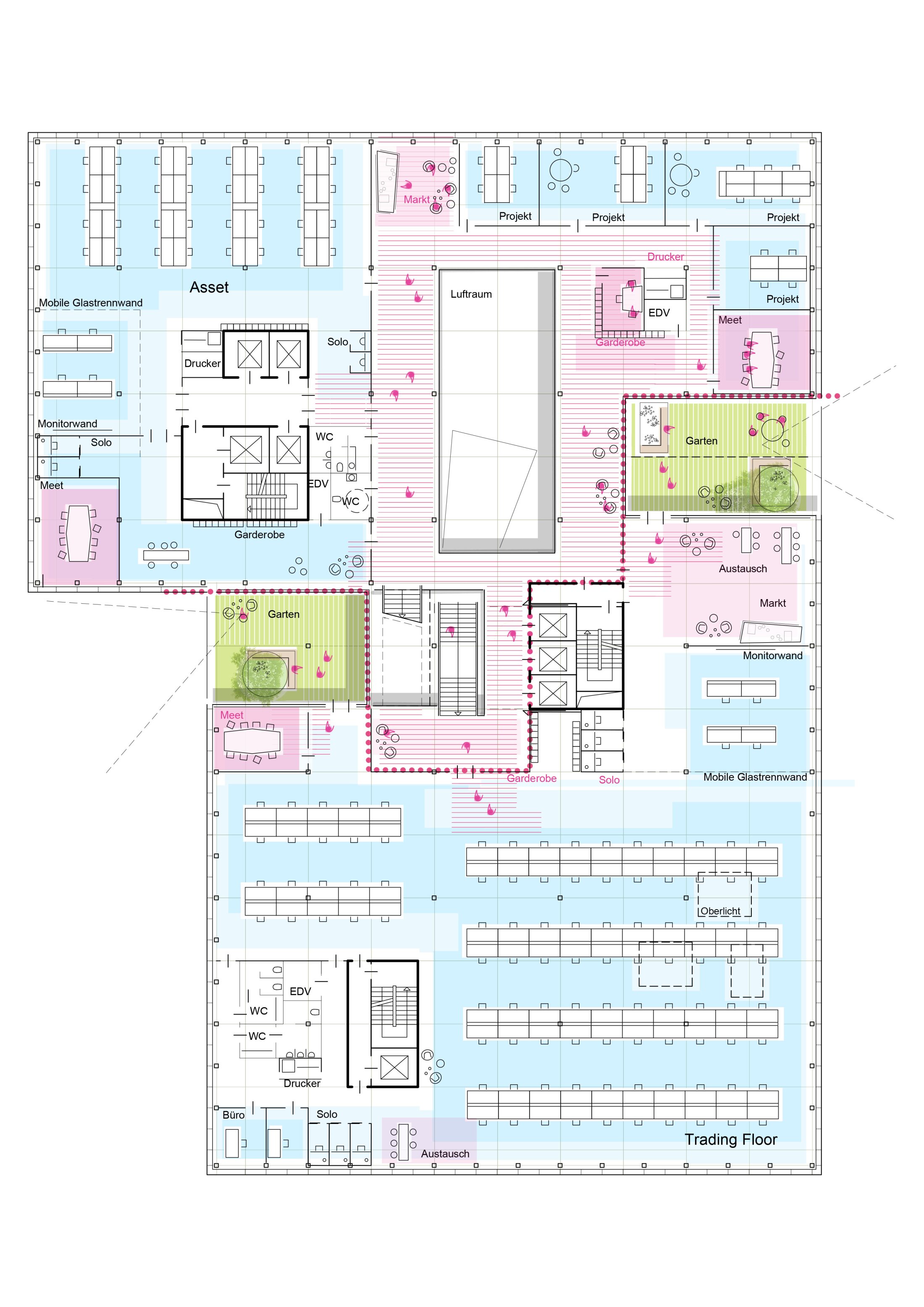
Upper office levels follow a flexible, open-plan system rather than traditional cellular layouts, allowing adaptable work environments. Internal staircases and double-height spaces create vertical connections and encourage interaction across floors. Integrated gardens and buffer zones structure the building, offering informal workspaces, improving microclimate, and enabling natural ventilation. These green elements mediate between interior and exterior while enhancing user comfort. Roof terraces and landscaped areas extend usable space and reinforce the building’s identity as a dynamic, vertically connected organism. The result is a flexible, transparent, and future-oriented workplace embedded in its urban context.

Level 0


Floorplans upper Levels
- Client
- EDGE Hamburg
- Architects
- Behnisch Architekten
- Competition
2019, 1st prize
- Downloads
- Download PDF






