
In 2004 Behnisch Architekten were commissioned with the extension of the award-winning single and two story school complex for domestic economics and agriculture in Herrenberg, realized by Behnisch & Partner in 1983. The extension, a single story timber frame pavilion building, which houses a range of classrooms, offices, and technical spaces, stands to the south of the existing main complex with commanding views out over the undulating landscape.

With its projecting roofs and timber terraces, it seems to float above the site like a raft. Its simple, unobtrusive, low-lying form is calmly integrated into the overall complex, its dimensions corresponding to those of its mature neighbour while the chosen materials provide a welcome contrast. The proximity to the original building creates a series of differentiated interstitial spaces. Subtle modeling of the landscape serves to tie the two structures together.




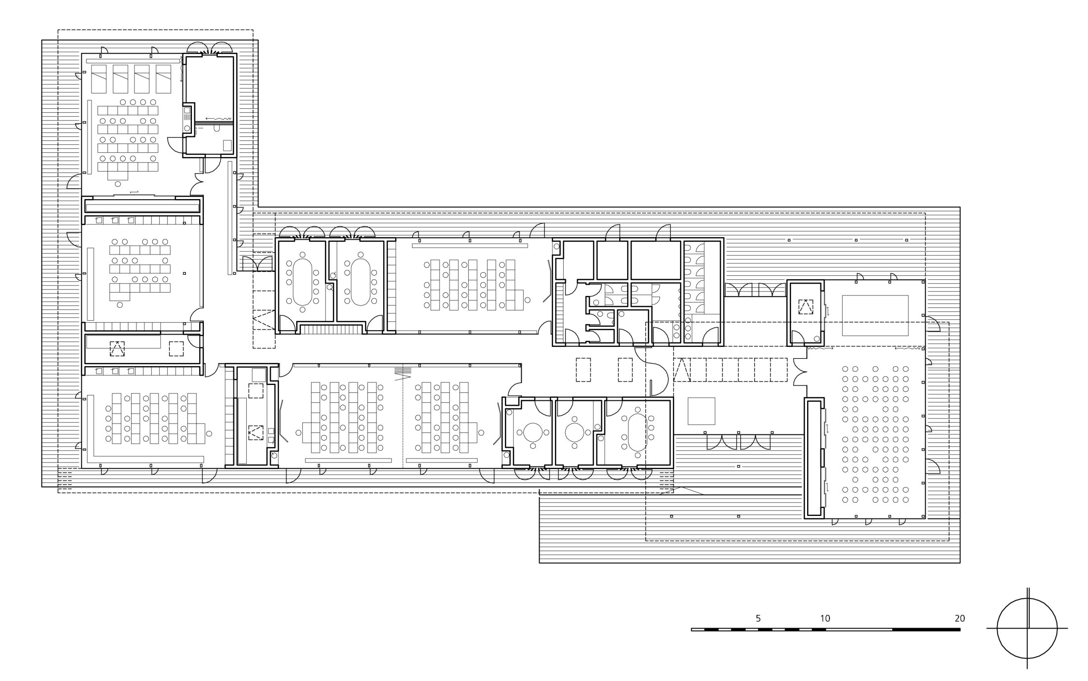
Level 1
The support rooms are arranged in the floor plan as seemingly closed boxes with the classrooms positioned naturally in the spaces in-between. Full height glazed facades and glazed partitions to the corridors create a light and open spatial structure. The rooms reserved for fine art and handicrafts have parquet flooring, all other floors are covered with bold green linoleum, which echoes the bucolic ambiance produced by the surrounding meadows and fields.
The new pavilion building makes extensive use of local timber. Its facades are playfully composed of opaque and glazed areas. Walls, both internal and external, are clad with untreated 3-ply larch panels of varying width. The ribbed roof construction is lined with wooden battens. The lighting and media supplies have been fully integrated into the construction.

- Client
- Landratsamt Böblingen
- Architects
- Behnisch Architekten
- Address
Längenholz 8
71083 Herrenberg
Germany- Gross Area
1.200 qm / 12,910 sq.ft
- Gross Volume
5.690 cbm / 200,940 cu.ft
- Competition
Direct Comission 2004
- Photography
Christian Kandzia
- Downloads
- Download PDF






