
The five-story perimeter building responds to the eave heights of its neighbors. Above this, three additional stories step back to minimize impact on the surrounding streets—except for a lounge for friends of the Landesgirokasse, which projects over the street. The setbacks create a series of roof terraces and gardens and contribute to a more interesting skyline.


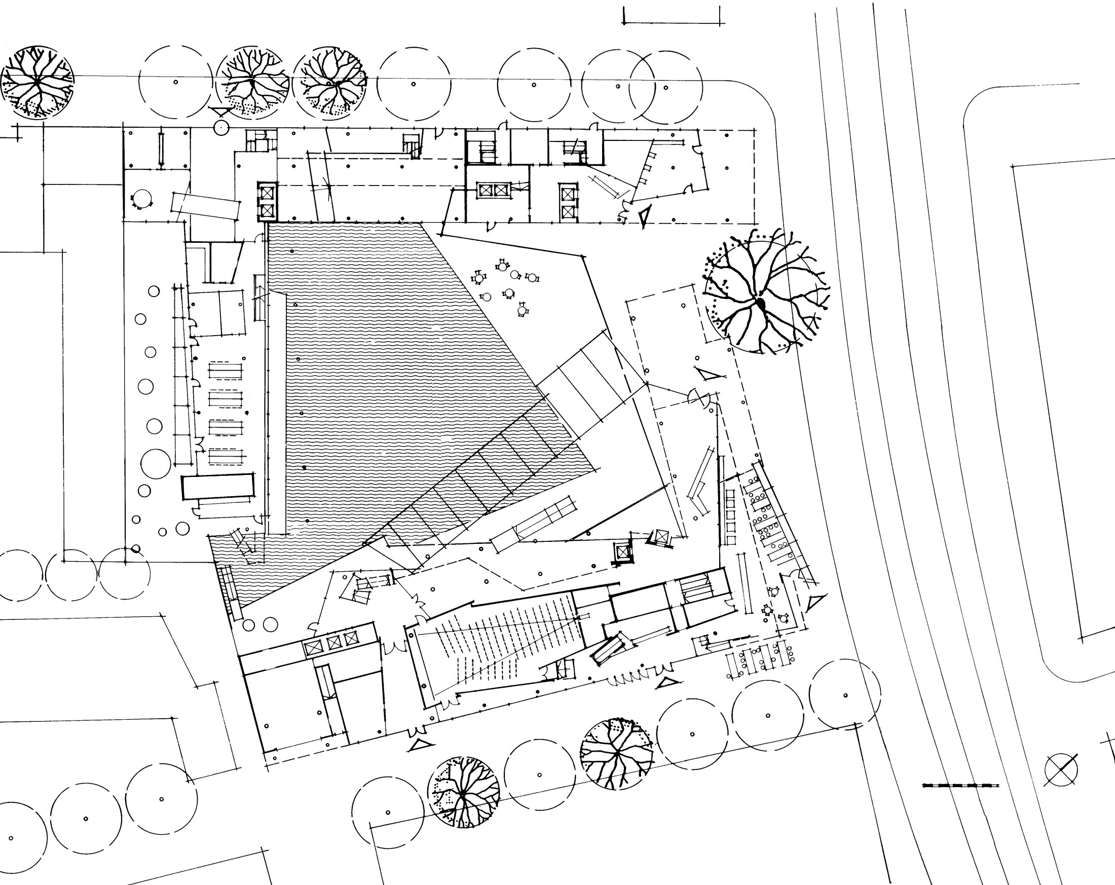
Site Plan
The classical perimeter block reinforces the street pattern while protecting a central courtyard from noise. Open to the public and set one level below the ground floor, the courtyard features a large expanse of water and a sloping glass roof that encloses the main entrance hall. The hall extends over four floors and also hosts exhibitions and events. The water extends into the hall—blurring the boundary between interior and exterior—and introducing reflected sunlight into unexpected areas. Rooftop heliostats intensify daylight and amplify reflections that lead to an interplay of light, color, and water—creating a new and uniquely animated urban space.
The courtyard level accommodates training rooms, a cafeteria, a recreation zone and the kitchen, all of them looking onto the water. The office wings are defined by a shallow plan that allows for each workstation to be located near the facade, improving natural ventilation and access to daylight.




- Client
- Landesgirokasse Gründstücksanlagengesellschaft
- Architects
- Behnisch, Sabatke, Behnisch
- Address
Fritz-Elsas-Straße 31
70174 Stuttgart
Germany- Gross Area
48.000 qm / 516,480 sq.ft
- Gross Volume
188.000 cbm / 6,638,280 cu.ft
- Competition
1991, 1st prize
- Photography
Christian Kandzia
- Downloads
- Download PDF

Occupying most of the site, the building left no room for landscaping, circumstances that made facade design especially important. The facades maintain an overall sense of clarity and functionality and are yet visually varied. A free use of colors creates a lively interplay of surfaces and lines within the regular grid of the facade.
The energy management system controls both mechanical ventilation and external sun-shading. Offices are equipped with cooling ceilings, where water circulating above suspended ceilings cools the air and ensures a pleasant degree of humidity. Additional features, such as manually operated openings and small impact-rain proof vents in the facades for night flushing further contribute to a healthy atmosphere.

Section AA







