

Following the success of the original NCT building that we completed in 2010—which brought together interdisciplinary care and cancer research under one roof—the expansion addresses growing spatial needs. The new additions include an annex to the existing laboratory and a freestanding timber administration building north of the day clinic, together providing around 2,600 m² of usable space across three floors.




Level 1
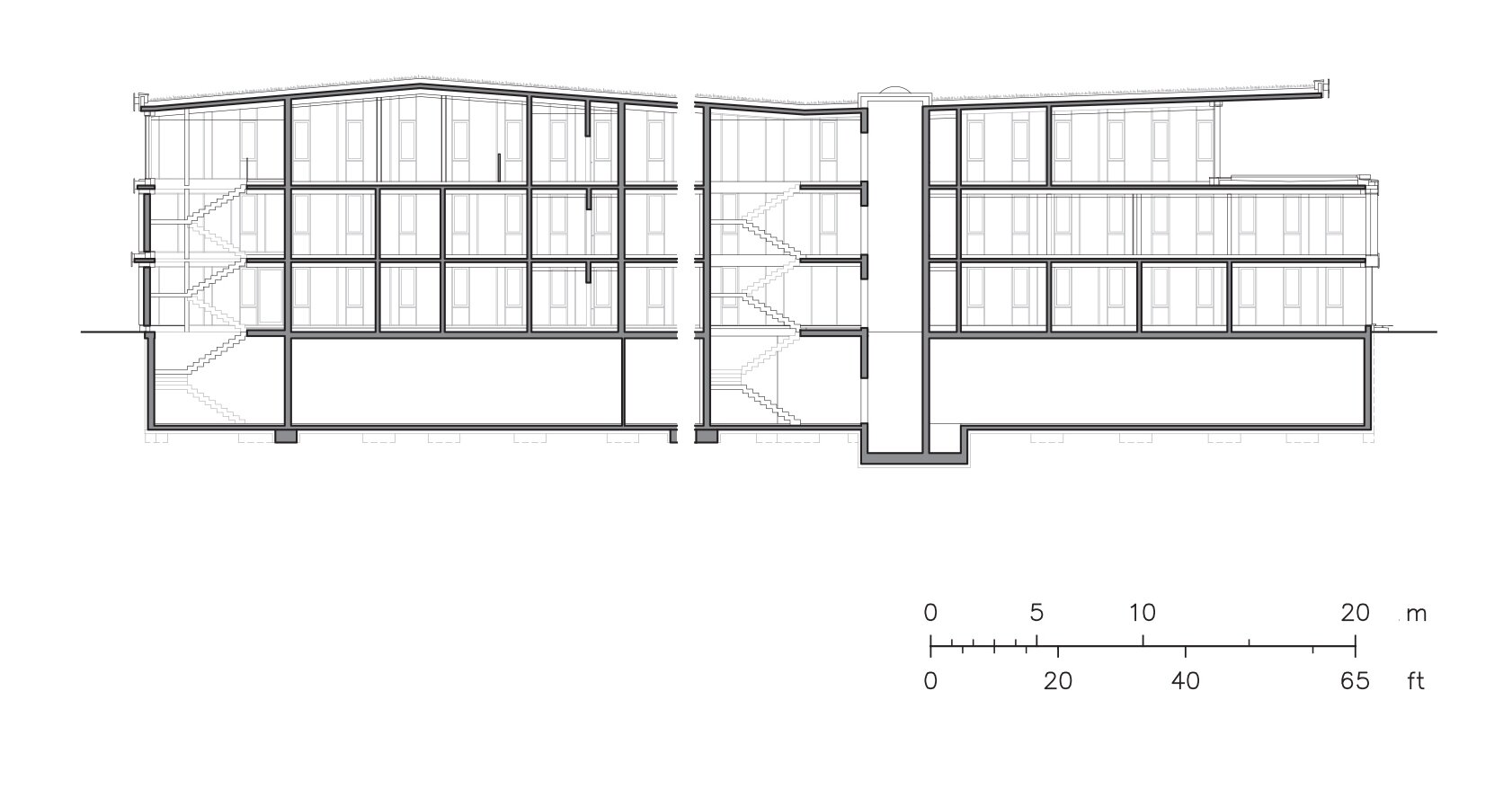
Despite strict functional requirements, the original building avoids the conventional hospital layout. It features a four-story, light-filled atrium designed to encourage informal encounters between patients, visitors, and staff. The new laboratory annex continues this approach, closely following the construction style, materials, and formal language of the existing structure. While maintaining the color palette and clear facade organization, it introduces subtle variations that differentiate it from the original. On the entrance level, the extension houses a Phase I Unit with ten therapy rooms, alongside examination and consultation spaces. The upper floors are dedicated to laboratory use.
- Client
- DKFZ Deutsches Krebsforschungszentrum
- Architects
- Behnisch Architekten
- Address
- Gross Area
5.140 qm / 55,327 sq.ft.
- Gross Volume
24.058 cbm / 849,608 cu.ft.
- Photography
David Matthiessen
- Downloads
- Download PDF



The new timber administration building contributes to the campus’s inviting atmosphere. Its bright interiors, the natural scent of wood, and a colorful felt-lined interior facade offer a sensory experience that softens the clinical context and evokes a domestic feel. Except for the basement, the entire building is constructed from timber, using cross-wall laminated timber plates (20 cm internal walls, 16 cm floors), serving as a sustainable addition to the existing structures. Operable windows allow for natural ventilation, and daylight is maximized throughout the design.

New Building - Section AA
The color shades and the clear arrangement of the existing facade are continued in the new expansion.






