
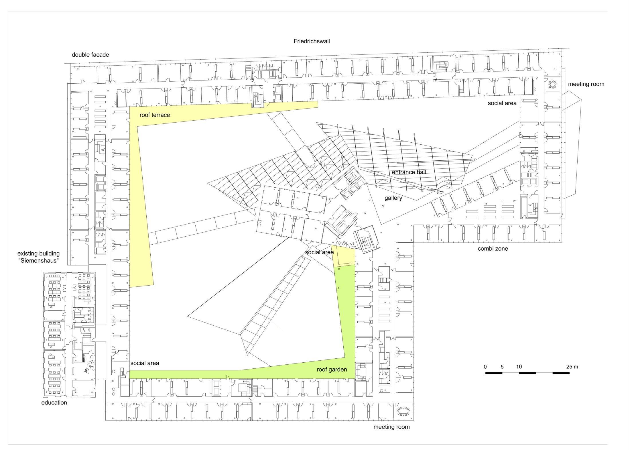
Occupying a full city block between the city center and residential areas, the Norddeutsche Landesbank serves as a key link between diverse urban districts—retail, residential, commercial, cultural, and recreational. Its varied heights allow the building to blend gently into the existing urban fabric. In line with planning guidelines, the 4- to 6-story shallow-plan perimeter structure aligns with the surrounding streets, reinforcing the city’s scale and responding to two existing buildings. From the outside, it recalls the traditional city block, while at its center lies a large, publicly accessible courtyard—shielded from traffic noise and serving as the heart of the complex. This courtyard, animated by the bank’s daily operations, is further activated by shops, cafés, restaurants, reflecting pools, lush landscaping, and public art.

Rising from this central space is a distinctive 70-meter tower, which departs from the formal order of the perimeter building through a series of twists and shifts. Its expressive form establishes visual and symbolic connections to the broader city and references the geometries of the historic northern downtown rather than the surrounding post-war grid. This high-rise building features conference areas, lounges, restaurants and board offices.



Level 1, 2, 5




Section AA
The interior reflects design choices driven not only by an advanced energy concept but also by a strong focus on acoustics. Achieving high speech intelligibility required specialized expertise, particularly given the building’s extensive use of glass. Much of the building is naturally ventilated, with an exposed superstructure and operable windows supporting an energy-efficient interior climate. Double-skin façades shield against noise and pollution and channel fresh air from the courtyard to individual offices. Expansive water surfaces in the courtyard enhance daylight reflection and contribute to a comfortable microclimate. Roof gardens soften the building’s appearance, promote occupant well-being, and collect rainwater for reuse.

- Client
- Norddeutsche Landesbank Hannover
- Architects
- Behnisch Architekten
- Address
Am Friedrichswall 10
30159 Hannover
Germany- Gross Area
75.000 m² / 807,300 sq.ft.
- Gross Volume
317.000 m³/ 11,194,749 cu.ft.
- Competition
1996, 1st prize
- Photography
Roland Halbe
Martin Schodder- Awards
2002 Niedersächsischer Staatspreis für Architektur
2002 Mies-van-der-Rohe-Award 2003, nominated
2003 DuPont Benedictus Awards, honorable mention
2003 Exhibition Interarch, World Triennial of Architecture, Sofia, special prize
2003 Deutscher Architekturpreis, honorable mention
2003 Boston Society of Architects Sustainable Design Awards, honorable mention
2003 BDA Preis Niedersachsen
2004 On Stirling Prize Midlist
2004 RIBA Award for Architecture- Downloads
- Download PDF








