
Site Sketch
In 2021, we won the planning competition for the reconstruction of buildings C and Q. The bidding procedure called for a master plan centered on the modernization and further development of the campus. The new laboratory buildings serve the departments of Chemical Engineering, Energy - Building Services - Environmental Engineering, Electrical Engineering and Computer Science, Mechanical Engineering, and Engineering Physics, and will provide future students and researches with high-quality facilities.


Building C
While the street frontage forms a clearly defined edge that establishes a strong architectural boundary to the city, the elevations facing the campus are more varied. Green facades strengthen the relationship between the building and its outdoor context. New and existing structures come together to form a cohesive ensemble organized around a central courtyard, which offers generous outdoor common areas for gathering, events, and informal exchange among students and faculty. Tiny forests in the courtyard and north of the parking structure offer additional retention areas.


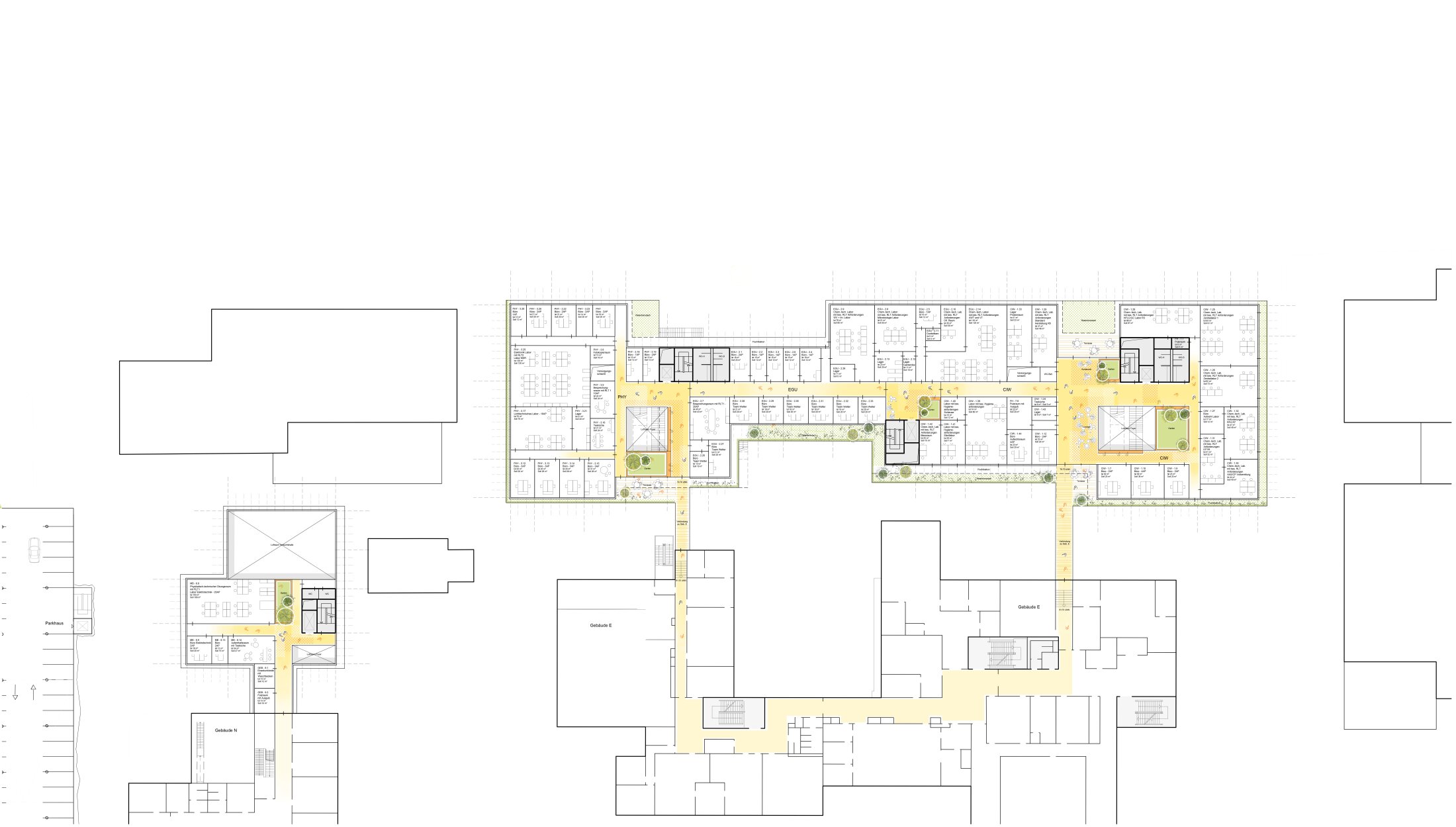
Site Plan, Level 1-2
A new connecting path provides the main access to the buildings and structures the entire campus. Its key nodes are marked by sheltered communal zones, outdoor teaching spaces, seating areas, and bicycle facilities. Second-story bridges link the new buildings C and Q to the adjacent existing structures, ensuring direct, efficient movement for students and staff while horizontally integrating the various building clusters into a unified whole.
- Client
- Bau- und Liegenschaftsbetrieb NRW Niederlassung Münster
- Architects
- Behnisch Architekturbüro
- Address
Steinfurt
Germany- Gross Area
Building C:
11.817 qm / 127,197 sq.ft.
Building Q:
2.233 qm / 24,035 sq.ft- Competition
2022, 1st prize
- Downloads
- Download PDF




Building Q
As a contribution to resource conservation, the ventilated aluminum trapezoidal sheet metal façade will be constructed using reused trapezoidal sheets. Contact was established with SWM Munich, which is dismantling a ventilated façade as part of a renovation process. Following expert assessment, this façade can potentially be reused for the new Campus Building Q. Offcut material will be repurposed into foyer furniture and planters.
Greened roof areas maximize rainwater retention, storing rainwater on-site and creating a valuable reserve. During the hot summer months, this will have a positive, cooling effect on the campus’s microclimate. Open facades provide natural ventilation, while a green shell of vertically arranged plantings offers habitat for countless insects. Photovoltaic modules on the southern facade form the vertical boundary at the top of the buildings and generate additional energy. As part of the mobility concept, parking space integrated into the ground floor in the campus’ southern area accommodates 100 bicycles in an optimal location along the central east-west path.

Parking Structure

Building C






