
The Unilever headquarters for Germany, Austria, and Switzerland occupies a prominent site along the Elbe in Hamburg’s HafenCity. Located at the end of the route from the city center to new waterfront landmarks—such as the cruise ship terminal and Strandkai promenade—the building both defines and opens itself to the urban fabric, inviting public engagement.

By elevating the upper floors, the design transforms the ground level into a seamless extension of the public realm, returning much of the site—externally and via a central atrium—to the city. The atrium serves as a hub between public and private spaces, fostering meetings and collaboration. Bridges, ramps, and stairs linking the office levels animate the interior, giving it a vibrant, urban character. Expansive views of the harbor, ships, sky, and HafenCity reinforce a strong connection to the site, while the architecture encourages spontaneous interaction and collective work.

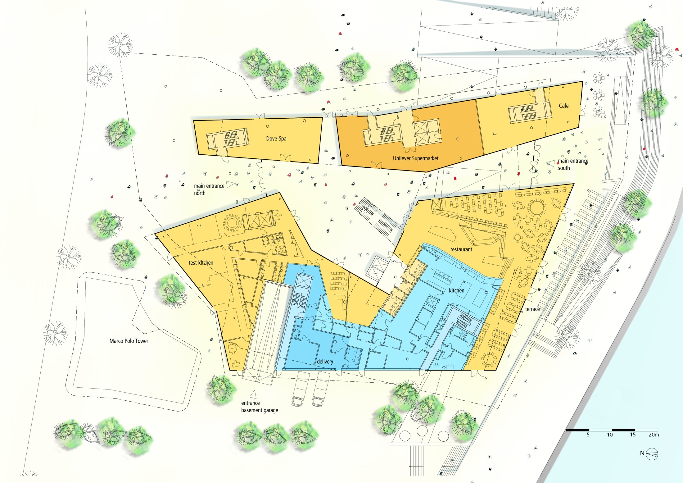
Level 1
The project reflects a holistic approach to sustainable architecture, favoring passive systems over technical complexity: thermally activated concrete ceilings provide cooling, and primary energy use was designed to remain below 100 kWh/m² per year.



- Client
- HOCHTIEF Projektentwicklung
- Architects
- Behnisch Architekten
- Address
Strandkai 1
20457 Hamburg
Germany- Competition
2006, 1st prize
- Gross Area
38.000 qm / 409,000 sq.ft.
- Gross Volume
165.000 cbm / 5,826,150 cu.ft
- Photography
Adam Mørk
- Certification
Umweltzertifikat der HafenCity Hamburg in Gold
- Awards
2009 BEX Award
2009 Barcelona World Architecture Festival Award 2009
2010 BDA Hamburg Architektur Preis
2010 Nominated for Best Office Award
2010 Green Good Design Award
2010 Prime Property Award, 3rd prize
2010 RIBA International Award
2011 Schüco Green Building Award
2011 Nominated for Mies van der Rohe Award- Downloads
- Download PDF
A custom SMD-LED lighting system supplements natural daylight and cuts energy consumption by over 70% compared to conventional lighting at the time. The project was awarded the HafenCity EcoLabel in Gold, recognizing its innovative and environmentally responsible approach.

Section AA



The building’s distinctive ETFE façade, wrapped like a translucent second skin, appears light and dynamic, responding to shifting daylight. As one of the first large-scale uses of ETFE film in a double façade, it combines innovation with performance. The outer membrane protects operable windows and adjustable sunshades from wind, noise, and air pollution—especially from the adjacent cruise terminal. A ventilated cavity allows fresh air to circulate, while a minimal structure of cables, rods, and wind suction cables maintains transparency and reduces stress on the membrane.







