
Arial View
The masterplan is defined by a strong unifying roof that brings together the sports hall and family center into a coherent whole. Rather than separate buildings, the design forms a connected structure in which each function remains legible while contributing to a shared identity. The existing climbing facility is integrated, reinforcing the layered character of the site. A central courtyard acts as the social heart, enabling movement, interaction, and visual connections between programs. Surrounding open spaces extend this concept into the landscape, with a multifunctional forecourt to the north and green areas that mediate between built form and open terrain.

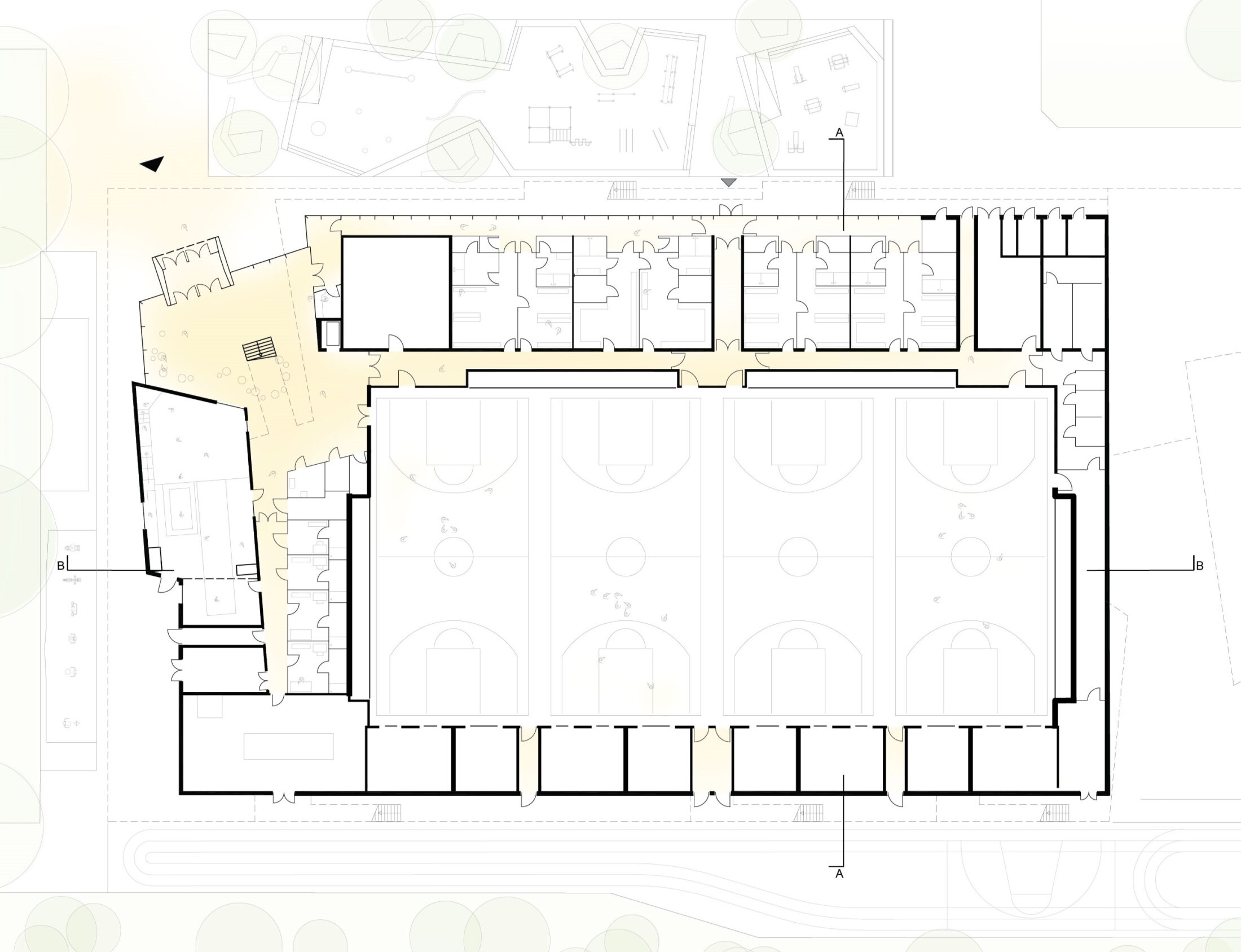
Level 0 Family Center & Sports Hall
- Client
- Stadt Erlangen
- Architects
- Behnisch Architekten
- Address
Hartmannstrasse 116-118
91058 Erlagen
Germany- Competition
2018 (VGV)
- Photography
David Matthiessen
- Gross Area
5.119 qm / 55,102 sq.ft.
- Gross Volume
16.039 cbm / 566,417 cu.ft.
- Downloads
- Download PDF
Family Center
The family center is organized around a central foyer that links educational and social spaces. Circulation areas are conceived as active zones for play and informal exchange, while a balance of open and more private spaces allows for diverse uses. Roof terraces provide additional outdoor areas and strengthen the connection between interior and exterior.



Family Center
The sports hall forms the anchor of the ensemble as a clear, robust volume. A column-free four-court hall is spanned by a wide timber roof, creating a bright and flexible interior. Supporting functions such as changing rooms, training areas, and spectator spaces are directly connected for efficient use.
Sports Hall



Sports Hall

Section AA
Together, the buildings form a cohesive and vibrant environment that supports everyday activities as well as larger events, establishing a new focal point for community life.






